Showcasing our approach to Milan apartment refurbishment
As a new studio, we're building our portfolio with each carefully crafted project. These two personal projects demonstrate our design philosophy and attention to detail. We're excited to take on client projects and expand our showcase of Scandinavian-Japandi transformations in Milan.
Before

After




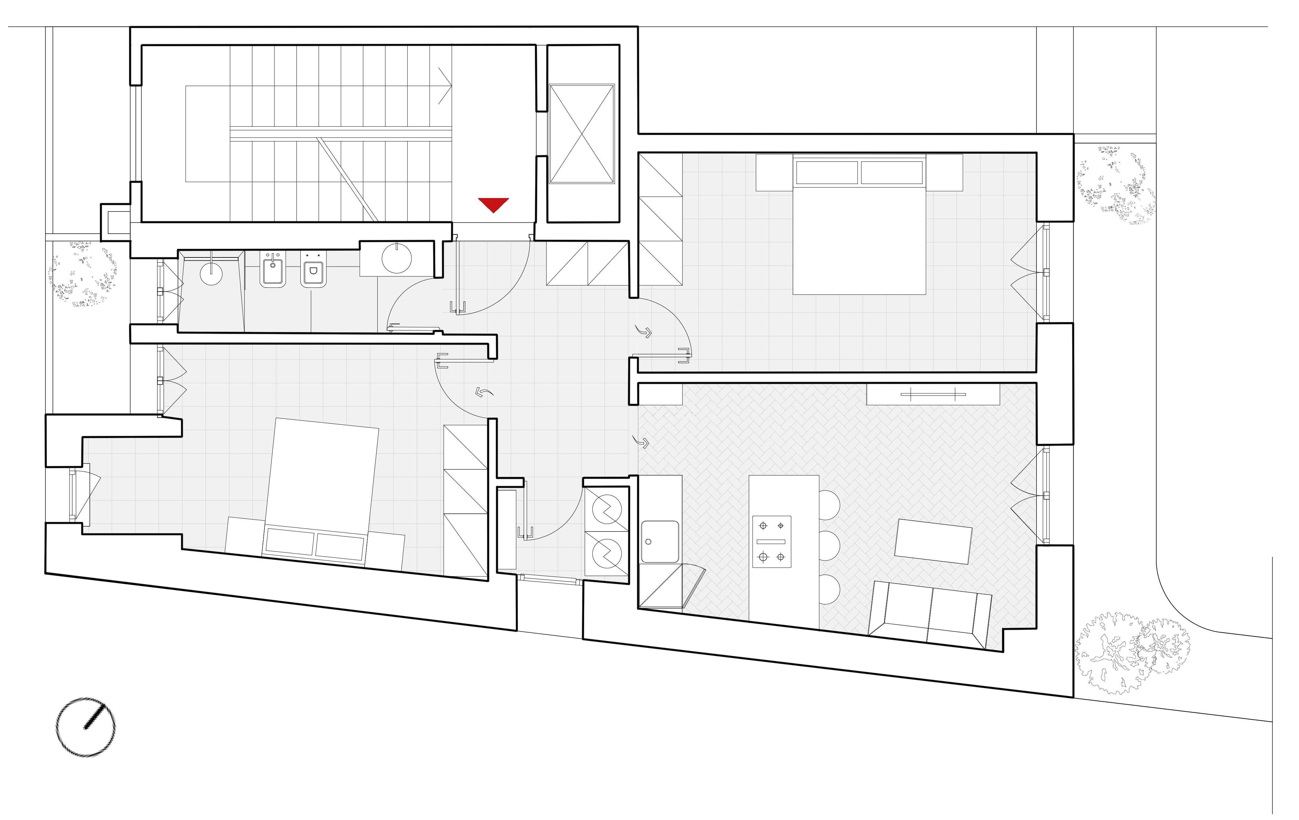
A thoughtful renovation that reconfigures the internal layout without major demolition works, creating an open kitchen living room at the heart of the apartment, with a warm and exquisit bathroom renovation.
Duration
4 months
Investment
€25.000
Style
Scandi-japandi
Before

After




A complete transformation of a late 1950s apartment into a serene Scandinavian-inspired living space while preserving original Milanese architectural details.
Duration
5 months
Investment
€55.000
Style
Japandi and mid-century modern
How we blend Scandinavian minimalism with Italian architectural heritage
We honor original Milanese architectural elements like terrazzo floors and exposed beams while introducing Nordic functionality.
Oak, birch, natural stone, and linen create warmth and texture while maintaining the clean lines of Scandinavian design.
Every design decision serves both beauty and purpose, creating spaces that will remain relevant and functional for decades.
We're excited to take on new client projects and expand our portfolio. Let's create something beautiful together in Milan.
Currently accepting 3-4 new projects for 2026 • Book your consultation today